t-teplukhina.ru
  • Обо мне
  • Портфолио
    • Кухня-гостиная в 3х комнатной квартире
    • Дом в Павловске
    • ЖК «Новый Леснер»
    • Дом Барнхауз 137 м²
    • ЖК «Светлана Парк»
    • 3х комнатная квартира в г. Петергоф
    • ЖК «Жемчужный каскад»
    • ЖК «Черная речка»
    • Коллажи
    • Примеры из рабочей документации
    • Фото реализованных дизайн-проектов
  • Контакты
обмерный план квартиры  в программе Revit
обмерный план
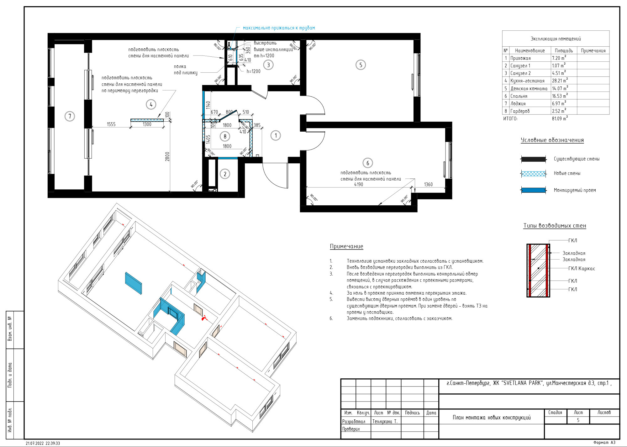
монтажный план, план возведения новых перегородок
монтажный план
план мебели
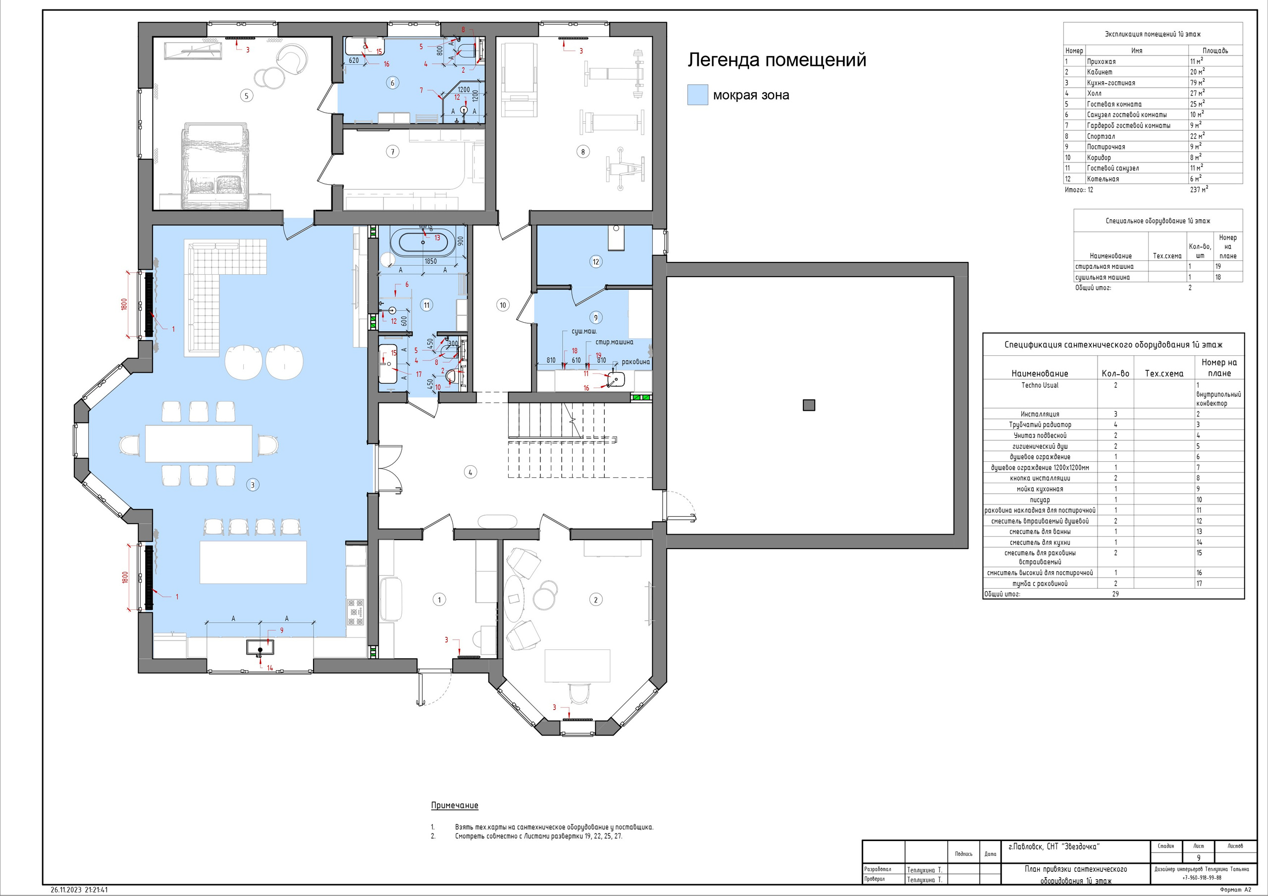
план расстановки сантехники
Рабочие чертежи, рабочая документация, РД. Дизайн-проект Санкт-Петербург
Рабочие чертежи, рабочая документация, РД. Дизайн-проект Санкт-Петербург
Рабочие чертежи, рабочая документация, РД. Дизайн-проект Санкт-Петербург
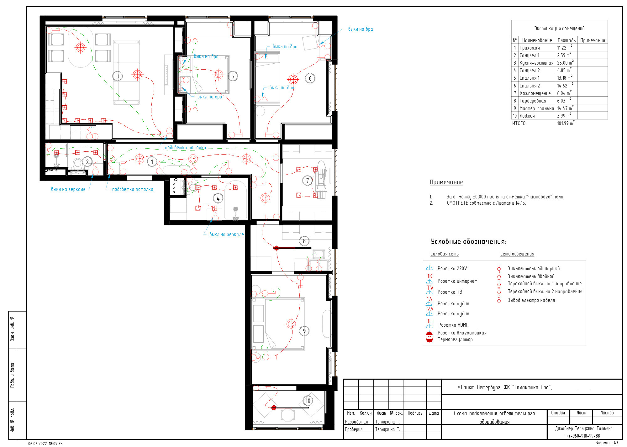
свет подключение в плане квартиры
план подключения электоосветительных приборов
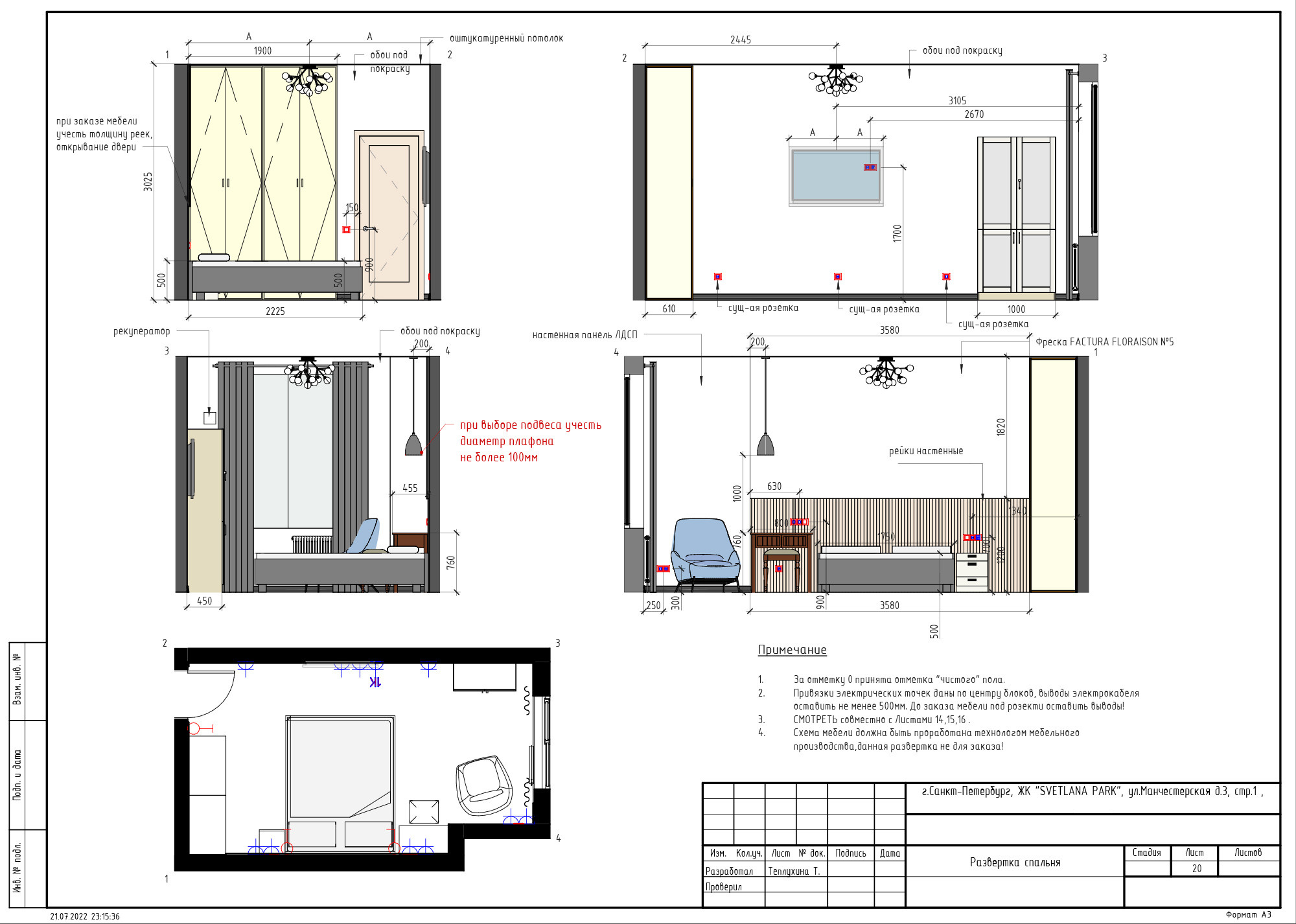
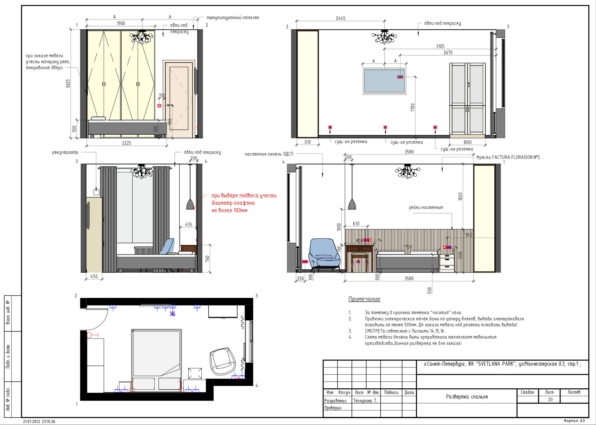
спальня для молодой пары в эко стиле
развертка спальни
ведомость отделки чистовыми материалами
ведомость отделки
спецификация дверей, отделка
спецификация дверей

Татьяна Теплухина

Сайт от wfolio